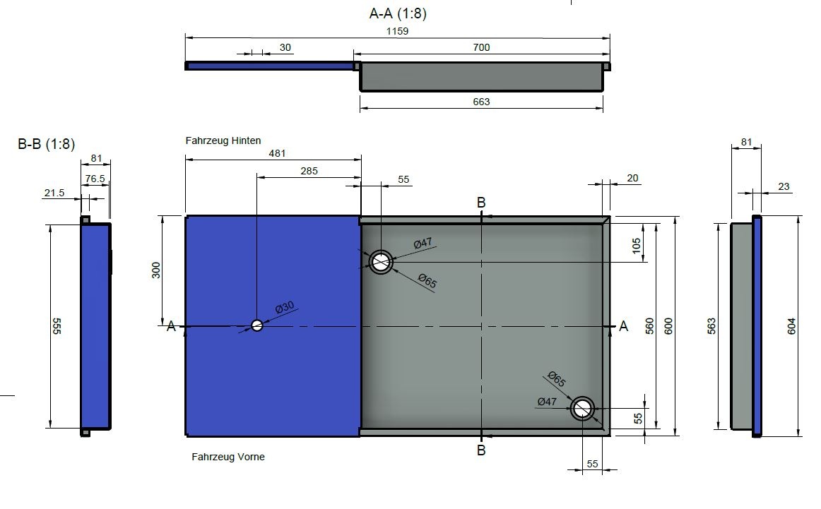
Receveur de douche en acier inoxydable, 2 pièces {R4A}, épaisseur 1,5 mm, finition intérieure K320, dimensions 600 x 1159 mm, hauteur 81 mm, 2 trous d'évacuation, conforme au dessin
Lire plus...Bacs en acier inoxydable, pliables en une seule pièce , une face avec finition K320
Les dimensions indiquées sont les dimensions extérieures. Il est fabriqué en acier inoxydable de haute qualité [1.4301].
Des siphons assortis peuvent être commandés en option :

Notre service client :
Téléphone : 06473 / 41208 11 Fax : 06473 / 41208 29
Courriel : [email protected]
Les bords coupés peuvent encore présenter une légère pigmentation résiduelle.
Peut présenter une légère bavure. Tolérances dimensionnelles : largeur ± 2 mm, longueur ± 2 mm
Hersteller:
TGA GmbH
Röntgenweg 18
35638 Leun
Deutschland
Telefon: 06473412080
Telefax: 064734120829
E-Mail: [email protected]