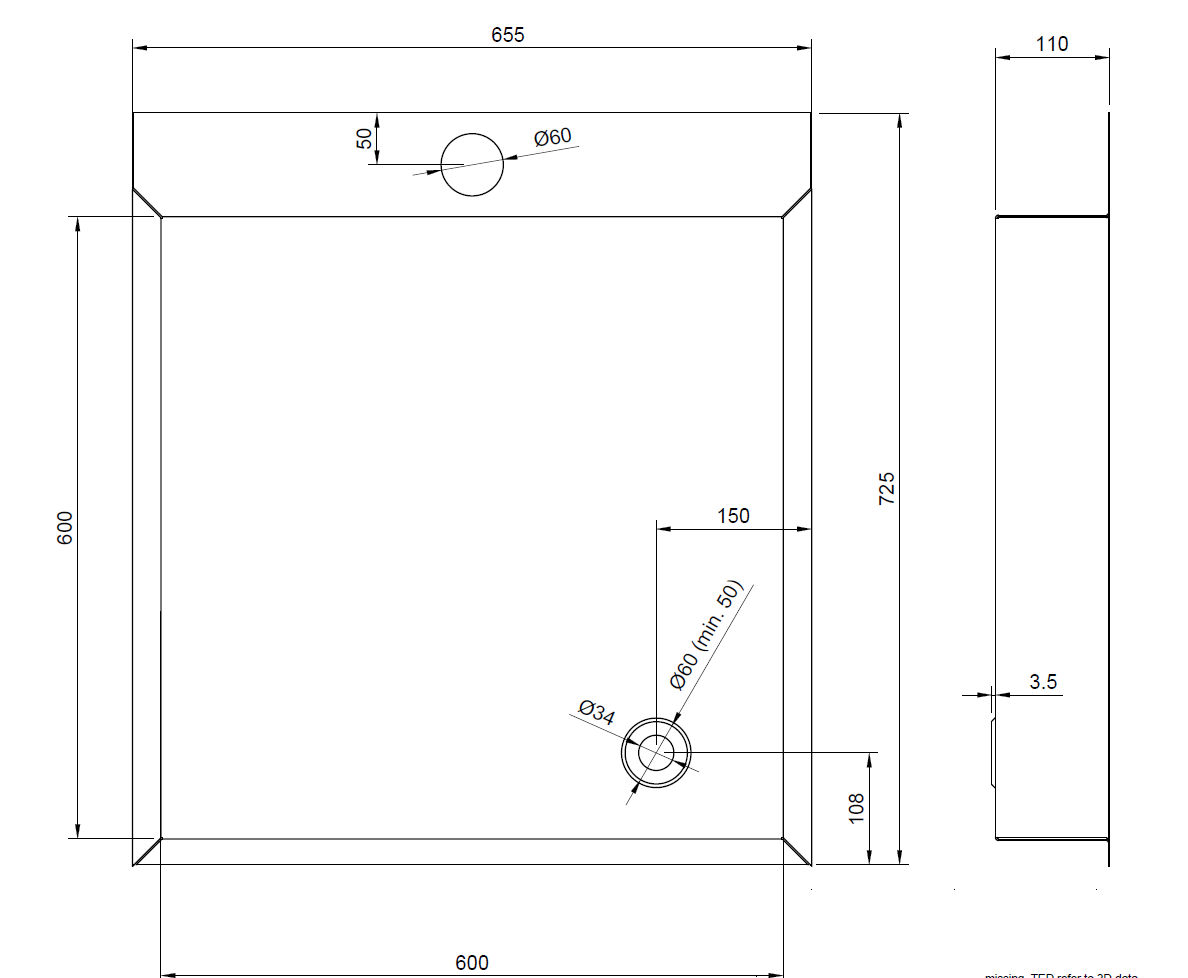
Receveur de douche spécial en acier inoxydable, receveur de douche {R3A} 1,5 mm, meulage INTÉRIEUR K320, dimensions avec bord : 655x725 mm, profondeur 110 mm, bord périphérique 27,5 mm selon croquis, bonde en bas à droite
Lire plus...Bacs en acier inoxydable, à simple tranchant , unilatéral avec meulage K320
Les dimensions indiquées sont des dimensions extérieures. Fabriqué en acier inoxydable de haute qualité [1.4301]
Des siphons de drainage assortis en option peuvent être commandés :

Notre service client :
Téléphone : 06473 / 41208 11 Fax : 06473 / 41208 29
Courriel : [email protected]
Les bords tranchants peuvent encore avoir un
avoir une légère crête. Tolérances dimensionnelles : Largeur +/- 2 mm Longueur +/- 2 mm
Hersteller:
TGA GmbH
Röntgenweg 18
35638 Leun
Deutschland
Telefon: 06473412080
Telefax: 064734120829
E-Mail: [email protected]